Appartamento a Livorno

In vendita
Appartamento
Livorno
37.118 €
Descrizione
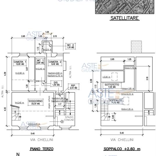
Nel comune di Livorno, via Chiellini 45, si trova in vendita IN ASTA un appartamento destinato a civile abitazione al piano terzo e sottotetto, composto da soggiorno con angolo cottura, due camere, due bagni, ripostiglio e disimpegno, sovrastante soppalco con annesso sottotetto.

Data asta 10/02/2026, Offerta minima €37.117,50
Contattaci per avere maggiori informazioni sulle aste.
Acquista in asta e ottieni anche tu un risparmio o guadagno sull’ immobile, difficilmente realizzabile con l’acquisto nel mercato tradizionale.
Se la casa di questo annuncio è la TUA contattaci e chiedici come possiamo aiutarti.
EASY ASTA, trova con noi la tua nuova casa!
Caratteristiche principali
Codice:
221/2022 U LI
Città:
Livorno
Categoria:
Appartamento
Locali:
3
Camere:
2
Bagni:
2
Mq:
68,5
Piano:
3
Anno ristrutturazione:
2007
Classe energetica:
Non dichiarata
Stato Immobile:
Buono
Grado:
Medio
Tipo Soggiorno:
Soggiorno
Tipo Cucina:
Angolo Cottura
Riscaldamento:
Autonomo
Tipo Riscaldam.:
Caldaia
Infissi:
Legno
Persiana:
Persiana Legno
Mappa
Via Chiellini , 45 - Livorno (LI)
Planimetrie
Richiedi informazioni
Invia
Cookie preference