Porzione di casa a Barberino Tavarnelle

In vendita
Porzione di Casa
Barberino Tavarnelle
193.838 €
Descrizione
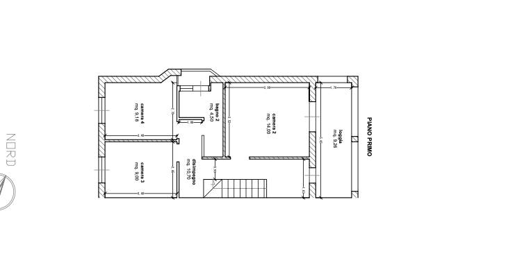
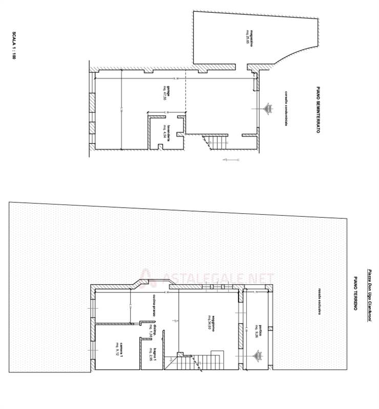
Nel comune di Barberino Tavarnelle, Piazza Don Ugo Cianferoni 14, si trova in vendita IN ASTA una porzione di casa disposta su due piani fuori terra oltre a piano interrato con lavanderia, composto al piano terra da resede e loggia, al suo interno da soggiorno, zona cucina-pranzo, disimpegno, camera e bagno, al piano primo da tre camere, bagno, disimpegno e balcone, oltre a garage e magazzino al piano seminterrato.

Data asta 17/03/2026, Offerta minima € 193.837,50
Contattaci per avere maggiori informazioni sulle aste.
Acquista in asta e ottieni anche tu un risparmio o guadagno sull’ immobile, difficilmente realizzabile con l’acquisto nel mercato tradizionale.
Se la casa di questo annuncio è la TUA contattaci e chiedici come possiamo aiutarti.
EASY ASTA, trova con noi la tua nuova casa!
Caratteristiche principali
Codice:
222/2023 1 FI
Città:
Barberino Tavarnelle
Categoria:
Porzione di Casa
Locali:
6
Camere:
4
Bagni:
2
Mq:
187,12
Box:
1
Mq Box:
47,55
Mq Giardino:
174,56
Balconi:
1
Mq Balcone:
9,26
Classe energetica:
Non dichiarata
Stato Immobile:
Buono
Grado:
Medio
Tipo Soggiorno:
Soggiorno
Tipo Cucina:
Abitabile
Riscaldamento:
Autonomo
Tipo Riscaldam.:
Caldaia
Tipo Impianto:
Radiatori
Raffrescamento:
Split
Infissi:
Legno
Persiana:
Persiana Legno
Pavim. Giorno:
Gres Porcellanato
Pavim. Notte:
Parquet
Pavim. Bagno:
Ceramica
Mappa
Piazza Don Ugo Cianferoni, 14 - Barberino Tavarnelle (FI)
Richiedi informazioni
Invia
Cookie preference