Appartamento con terrazzo a Pontassieve

In vendita
Appartamento
Pontassieve
132.222 €
Descrizione
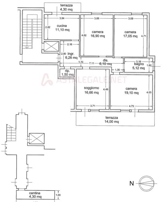
Nel comune di Pontassieve, Via Silvio Pellico 7, si trova in vendita IN ASTA un appartamento al piano primo di u più ampio fabbricato, composto da un ingresso/disimpegno, cucina, soggiorno, tre camere,
bagno finestrato, ripostiglio oltre a terrazzi e cantina al piano seminterrato.

Data asta 20/05/2026, Offerta minima € 132.221,76
Contattaci per avere maggiori informazioni sulle aste.
Acquista in asta e ottieni anche tu un risparmio o guadagno sull’ immobile, difficilmente realizzabile con l’acquisto nel mercato tradizionale.
Se la casa di questo annuncio è la TUA contattaci e chiedici come possiamo aiutarti.
EASY ASTA, trova con noi la tua nuova casa!
Caratteristiche principali
Codice:
245/2023 1 FI
Città:
Pontassieve
Categoria:
Appartamento
Locali:
5
Camere:
3
Bagni:
1
Mq:
118,09
Terrazzi:
2
mq Terrazzo:
18,3
Piano:
1
Classe energetica:
Non dichiarata
Stato Immobile:
Buono
Grado:
Medio
Tipo Soggiorno:
Soggiorno
Tipo Cucina:
Abitabile
Pavim. Giorno:
Graniglia
Pavim. Bagno:
Cotto
Accessori
Ascensore
Mappa
Via Silvio Pellico, 7 - Pontassieve (FI)
Richiedi informazioni
Invia
Cookie preference