Villa con giardino a Castelfranco di Sotto

In vendita
Villa
Castelfranco di Sotto
317.330 €
Descrizione
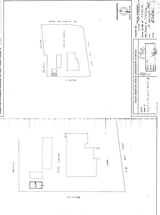
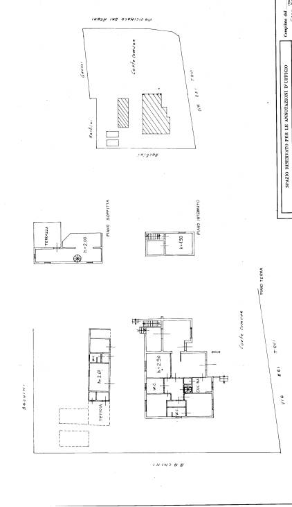
Nel Comune di Castelfranco di Sotto, si trova in vendita IN ASTA una villa disposta su tre piani, libera su quattro lati da giardino esclusivo e due autorimesse. Il piano terra è composto da un ampia zona giorno, con soggiorno e veranda, la zona pranzo con camino e cucina dotata di ripostiglio, la zona notte si compone da tre camere, due bagni, un ripostiglio e un disimpegno. Al piano sottotetto è presente una terrazza mentre al piano seminterrato troviamo due locali ad uso cantina, il più ampio dotato di angolo cottura, camino, bagno e forno.

Data asta 3/06/2026, Offerta minima €317.329,50
Contattaci per avere maggiori informazioni sulle aste.
Acquista in asta e ottieni anche tu un risparmio o guadagno sull’ immobile, difficilmente realizzabile con l’acquisto nel mercato tradizionale.
Se la casa di questo annuncio è la TUA contattaci e chiedici come possiamo aiutarti.
EASY ASTA, trova con noi la tua nuova casa!
Caratteristiche principali
Codice:
36/2024 U PI
Città:
Castelfranco di Sotto
Categoria:
Villa
Locali:
5
Camere:
3
Bagni:
2
Mq:
155
Box:
2
Mq Box:
11
Mq Giardino:
90,75
Classe energetica:
Non dichiarata
Stato Immobile:
Buono
Grado:
Medio
Lati Liberi:
4
Giardino:
Privato
Tipo Soggiorno:
Soggiorno
Tipo Cucina:
Abitabile
Infissi:
Legno
Persiana:
Persiana Legno
Pavim. Giorno:
Ceramica
Pavim. Notte:
Ceramica
Pavim. Cucina:
Ceramica
Pavim. Bagno:
Ceramica
Mappa
Via dei Tavi, 146 - Castelfranco di Sotto (PI)
Richiedi informazioni
Invia
Cookie preference