Porzione di casa a Fucecchio

In vendita
Appartamento
Fucecchio
173.250 €
Descrizione
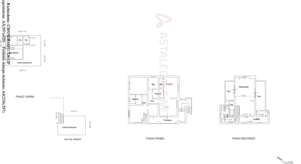
Nel comune di Fucecchio, Via G. M. Rosati 1, si trova in vendita IN ASTA un appartamento dislocato al piano primo, secondo di un fabbricato bifamiliare con accesso indipendente composto al piano terreno da resede esclusivo con scala di accesso e terrazzo al piano superiore, oltre box auto al piano terra, composto al suo interno al piano primo da ingresso-soggiorno, cucina, due ripostigli, disimpegno, due bagni e camera, al piano secondo da mansarda con locali ad uso soffitta e due terrazzi.

Data asta 13/05/2026, Offerta minima €173.250,00
Contattaci per avere maggiori informazioni sulle aste.
Acquista in asta e ottieni anche tu un risparmio o guadagno sull’ immobile, difficilmente realizzabile con l’acquisto nel mercato tradizionale.
Se la casa di questo annuncio è la TUA contattaci e chiedici come possiamo aiutarti.
EASY ASTA, trova con noi la tua nuova casa!
Caratteristiche principali
Codice:
443/2016 U FI
Città:
Fucecchio
Categoria:
Appartamento
Locali:
3
Camere:
1
Bagni:
2
Mq:
274,6
Box:
1
Mq Box:
33,1
Mq Giardino:
325
Terrazzi:
3
mq Terrazzo:
59,5
Classe energetica:
Non dichiarata
Stato Immobile:
Buono
Grado:
Medio
Giardino:
Comune
Tipo Soggiorno:
Soggiorno
Tipo Cucina:
Abitabile
Infissi:
Legno
Persiana:
Persiana Legno
Mappa
Via G. M. Rosati , 14 - Fucecchio (FI)
Richiedi informazioni
Invia
Cookie preference